• 索 引 号:QZ06122-0101-2022-10270
    • 备注/文号:晋自然资审〔2022〕238号
    • 发布机构:自然资源局
    • 公文生成日期:2022-09-09
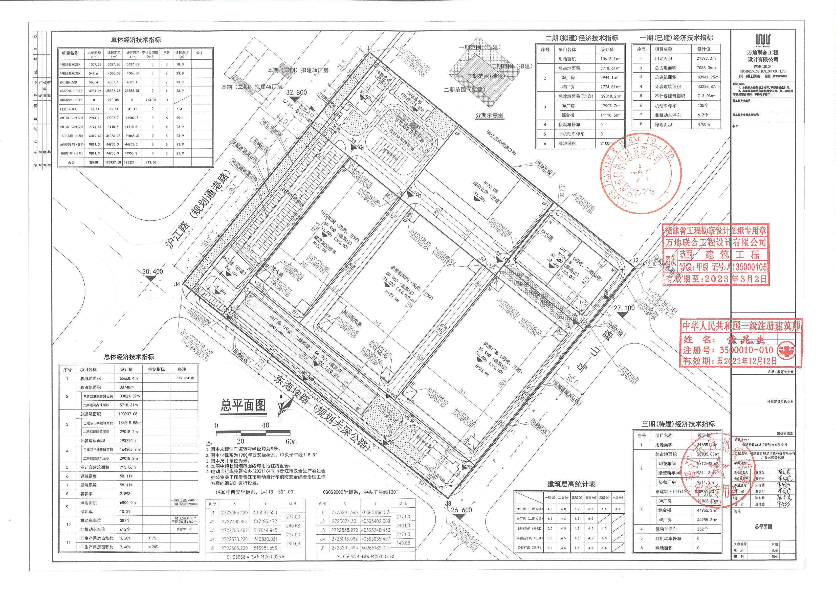
    晋江市自然资源局关于补充下达福建福田纺织印染科技有限公司厂房及配套设施项目规划条件的公示
    时间:2022-09-09 18:12

    晋江市自然资源局关于补充下达福建福田纺织印染科技有限公司厂房及配套设施项目规划条件的公示_页面_1

     

    晋江市自然资源局关于补充下达福建福田纺织印染科技有限公司厂房及配套设施项目规划条件的公示_页面_2

     

    晋江市自然资源局关于补充下达福建福田纺织印染科技有限公司厂房及配套设施项目规划条件的公示_页面_3

     

    晋江市自然资源局关于补充下达福建福田纺织印染科技有限公司厂房及配套设施项目规划条件的公示_页面_4

     

    附件下载

    扫一扫在手机上查看当前页面

    相关解读
    文字解读
    图片解读
    视频解读
    访谈解读
    媒体报道