- 索 引 号:QZ06101-1320-2023-00072
- 备注/文号:晋政地〔2023〕49号
- 发布机构:晋江市人民政府
- 公文生成日期:2023-02-18
晋政地〔2023〕49号
晋江市人民政府关于三斯达(福建)塑胶有限
公司部分道路用地纳入政府土地储备库的批复
晋江市土地储备中心:
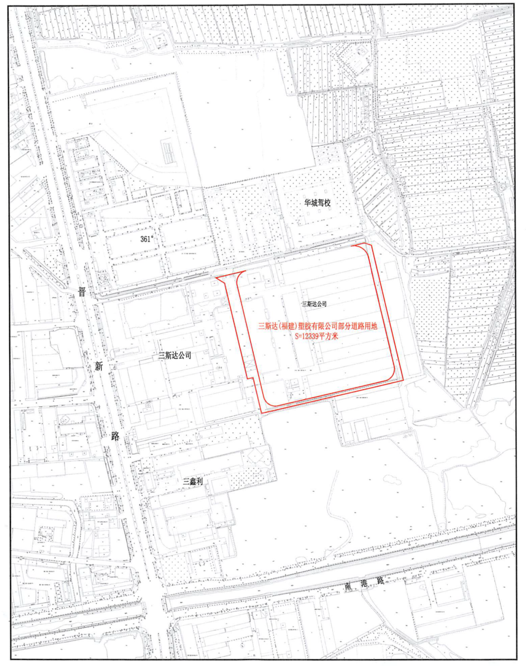
你中心《关于申请三斯达(福建)塑胶有限公司部分道路用地纳入政府土地储备库的请示》(晋土储〔2023〕2号)收悉,经研究,同意将位于陈埭镇江头村,面积12339平方米(折合18.509亩,具体详见地块示意图)的道路用地无偿纳入政府土地储备库,再交由市自然资源局按程序组织供地。
特此批复。
附件:三斯达(福建)塑胶有限公司部分道路用地示意图
晋江市人民政府
2023年2月18日
(此件主动公开)
附件
三斯达(福建)塑胶有限公司
部分道路用地示意图

抄送:市财政局、自然资源局,陈埭镇人民政府。
晋江市人民政府办公室 2023年2月18日印发
扫一扫在手机上查看当前页面



闽公网安备:35058202000114号
晋江政务
闽政通APP
