- 索 引 号:QZ06122-0101-2025-10269
- 发布机构:自然资源局
- 公文生成日期:2025-04-24
各有关利害关系人:
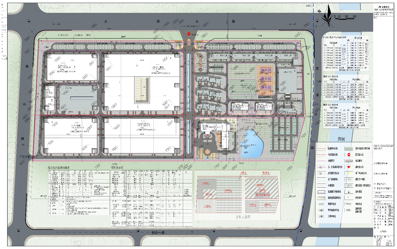
我局已受理福建浔兴拉链科技股份有限公司提出的福建浔兴拉链科技股份有限公司年产拉链5亿条及拉链布带2400吨项目(一期)的《建设工程规划许可证》核发的申请事项,现将规划拟许可内容公示如下:
一、总平面图。
本公示期限从2025年4月24日至2025年5月9日。根据《中华人民共和国行政许可法》第三十六条和第四十七条的规定,行政许可申请人、利害关系人有权进行陈述、申辩和要求听证的权利。如有意见与建议,请以署名书面形式、告知我局。申请听证的,应于公示期间内以书面形式向我局提出听证申请,逾期未提出的,视为放弃听证权利,我局将依法作出相关行政许可。如在公示期内对我局审批事项有异议,向我局提交书面申请的,我局将依法向申请人提供异议人的姓名、申请事项等信息。
联系电话:0595-85659718;
联系地址:晋江市政务服务中心四楼420室。
扫一扫在手机上查看当前页面


闽公网安备:35058202000114号
晋江政务
闽政通APP
